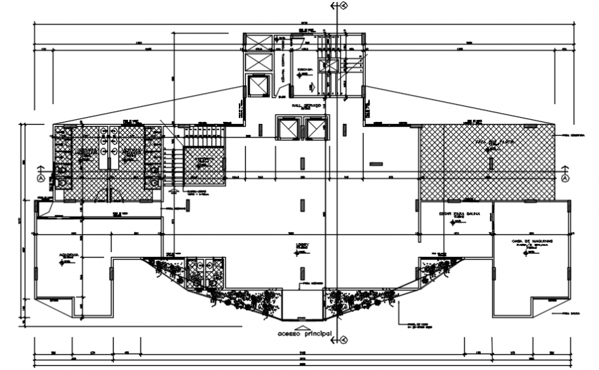
Fourth floor distribution plan details of apartment building dwg file
Description
Fourth floor distribution plan details of apartment building that includes a detailed view of main entry house door, drawing room and living room with family hall details kitchen and dining area, indoor staircases and laundry area and balcony, details and bedroom or master bedroom, toilets and bathroom with indoor doors, furniture details and much more of apartment building project.
Uploaded by:
Eiz
Luna

